︎
Claudia Carle
︎︎︎ About
︎︎︎ Contact
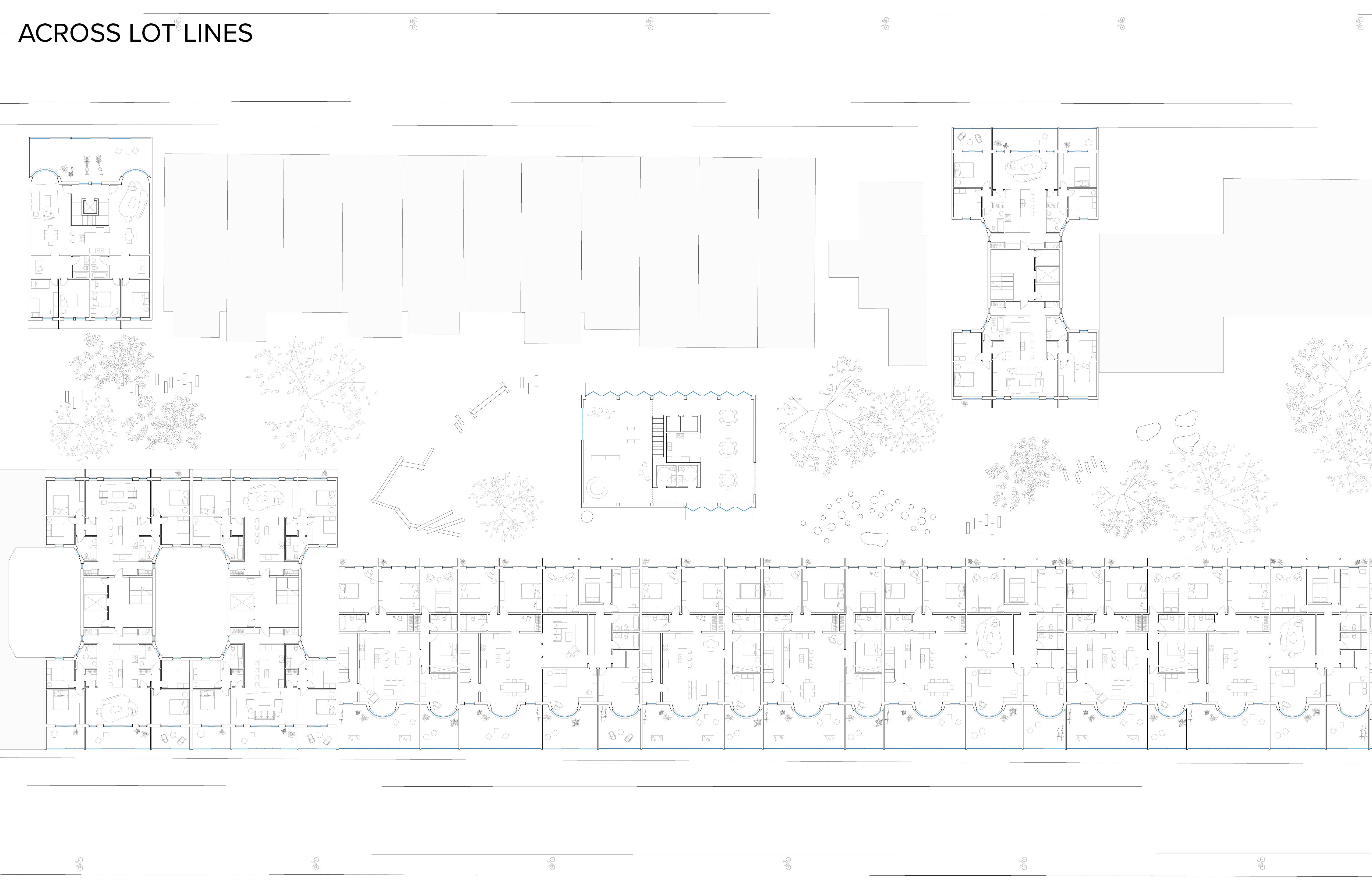
A New Paradigm
Sunset Park, Brooklyn, NY
Architecture and Design
Email